
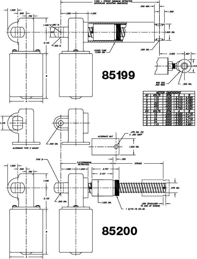
The Ball Screw with a diameter of .979 permits a load rating up to 1000 lbs. It also has integral freewheeling at stroke ends to eliminate limit switches. The 85199 uses a translating tube for mounting, while the 85200 is an open screw type unit where attachment is made directly to the ball nut.
